Описание товара
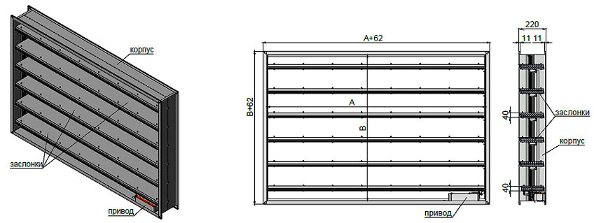
Клапан противопожарный канального исполнения Сигмавент-90-НО(КЛ)-АхВ-ВН-… Клапан канального исполнения многостворчатый состоит из корпуса прямоугольной формы, заслонок и привода, расположенного внутри корпуса. Корпус изготовлен из оцинкованной стали и конструктивно аналогичен отрезку воздуховода длиной 220 мм с подсоединяемыми фланцами, изготовленными заодно с корпусом. Заслонки, состоящие из огнестойкого теплоизолирующего материала, облицовываются снаружи оцинкованной сталью и стягиваются крепежными элементами. Заслонки в открытом положении не выходят за пределы корпуса клапана.
Клапаны Сигмавент- Нормально открытые(НО) предназначены для блокирования распространения пожара и продуктов горения по воздуховодам, шахтам и каналам систем вентиляции и кондиционирования зданий и сооружений различного типа.
Клапаны имеют следующие пределы огнестойкости:
- 60 минут(Е160)
- 90 минут(Е190)
Для управления клапанами используются следующие виды приводов:
- Пружинный привод с электромагнитной защелкой (Электромагнитный привод)
- Электромеханический привод с возвратной пружиной
- Электромеханический реверсивный привод
Клапан «канального» исполнения (с возможностью подсоединения воздуховода хотя бы с одной стороны) состоит из корпуса прямоугольной формы, заслонки и привода. Корпус с 2-мя присоединительными фланцами изготовлен из оцинкованной стали и конструктивно аналогичен отрезку воздуховода. Заслонка коробчатого типа изготовлена из оцинкованной стали и заполнена изнутри огнестойким теплоизолирующим материалом.
ОСОБЕННОСТЬ МОДИФИКАЦИИ В ОТСУТСТВИИ ВЫЛЕТА ЗАСЛОНОК В ОТКРЫТОМ ПОЛОЖЕНИИ ЗА ПРЕДЕЛЫ КОРПУСА КЛАПАНА И РАСПОЛОЖЕНИЕМ ПРИВОДА ВНУТРИ КОРПУСА

| Максимальная скорость потока/ Максимальное удельное статическое давление в открытом положении | Вылет заслонки | Применяемая решетка | Типы приводов | Расположение привода | Рекомендуемое место установки |
| 25 м/с
1500 Па |
Отсутствует за пределы корпуса клапана | Рсв
РНСк |
• Электромагнитный
• Электромеханический с возвратной пружиной • Электромеханический реверсивный привод |
Внутри корпуса-ВН | В конце воздуховода, вылет заслонки за пределы корпуса отсутствует |















